Waterside Plaza
| Zuflucht | |
|---|---|
Waterside Plaza | |
| Stadt | New York |
| Adresse | 20 Waterside Plaza, New York, NY 10010 |
| Ansässig | Susan |
| Susans Zuflucht | |
Geschehnisse vor Ort
- 9 April 2000 - 12 April 2000: 11.1. Spiele im Schatten; Anwesend: Liz und Susan; Geschehnisse: Im Hurricane findet das erste reguläre Elysium statt. Liz und Susan erfahren, wer den Tremere im Parkhaus umgebracht hat.
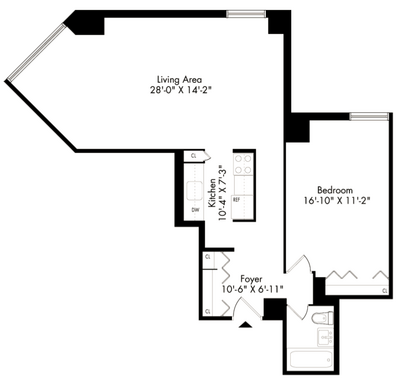
Susans Wohnung im Waterside Plaza ist ihre "Arbeitswohnung", da sie in Fußentfernung zum Bellevue Hospital liegt. Hier verbringt Susan die Tage, wenn sie im Bellevue nachts arbeitet oder Termine in Manhatten hat. Susan wohnte auch schon vor ihrer "Entführung" hier. Nach ihrer Rückkehr wurden sonnenlichtundurchlässige Rolladen eingebaut. Ihr Mann David verbringt oft die Nacht ebenfalls hier, da das NYPD in 10 min Entfernung liegt. Familie Hamilton hat noch ein Familienhaus in Staten Island, das am Wochenende und für offizielle Familienbesuche genutzt wird. Es wurde nach Susans Rückkehr ebenfalls umgebaut. Die Wohnung im Waterside Plaza ist Susans offizielle Zuflucht in Camarilla - Kreisen.
Hier der Grundriss von Susans Wohnung:
Diese Aussicht liebte Susan früher, sie hängt jetzt als Fotodruck an der Küchenwand:
Wohnzimmer mit Klavier:
Schlafzimmer:
